大气污染治理工程及设备
给水处理工程及设备
污水处理工程及设备
污水处理通用设备
全自动加药装置
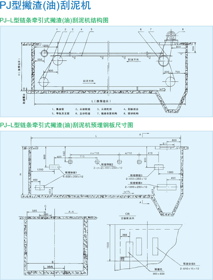
刮泥设备
生化处理工艺设备
气浮设备
MBR生化装置
污泥处理设备
 

无锡市国松环保机械有限公司
电话:0510-83582595 83580118
   13606181800 13306198199
传真:0510-83580118
邮箱:guosonghuanbao@sina.com
地址:无锡市惠山区
    前洲镇工业园区(堰玉东路)
邮编:214181


 
产品展示
 
湿式石灰石--石膏法烟气脱硫技术
湿式氧化镁法烟气脱硫技术
新型催化法脱硫
新型催化法低温SCR脱硫技术
窑炉烟气调质脱硫除尘一体化装置
新型厌氧反应器
污泥浓缩机
撇油刮泥机
悬架式中心传动刮(吸)泥机
共计:51条记录 页次:4/6 每页:9条     9 7 [2][34 [5][6]:
 
版权所有:无锡市国松环保机械有限公司  苏ICP备14057341号-1  苏公网安备32020602001934
地址:无锡市惠山区前洲镇工业园区(堰玉东路) 电话:0510-83582595 83580118 传真:0510-83580118 邮箱:guosonghuanbao@sina.com